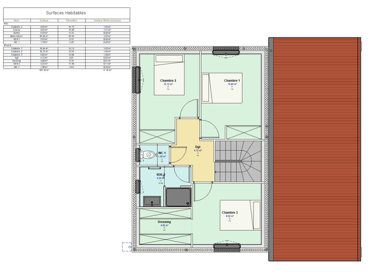
Construction : Projet maison 5 pièces 103 m² sur terrain de 475 m². Pomeys (69590)
Surface :
Hab : 103 m²
Terrain : 475 m²
Prix :
299 000€
Lancez votre projet de vie à Pomeys, au cœur des Monts du Lyonnais
Idéalement situé dans un village vivant et accessible à pied (école, petits commerces, services), ce terrain de 475 m² propose bien plus qu’un simple emplacement : c’est un projet clé en main qui vous attend.
Maison contemporaine en préparation — un plan pensé pour le confort au quotidien :
- 103 m² habitables,
- Grande pièce de vie de 40 m² avec cuisine ouverte,
- Suite parentale au rez-de-chaussée,
- Quatre chambres au total,
- Garage attenant.
Livraison prévue maison terminée : il ne vous restera qu’à poser les parquets dans les chambres, faire vos peintures intérieures et installer la cuisine de vos rêves.
Terrain prêt à construire : eau, électricité, gaz, assainissement, télécom — tout est déjà en place. Exposition optimale : pour une maison baignée de lumière et naturellement économe. Environnement calme et recherché, dans une commune à taille humaine, parfaite pour conjuguer tranquillité et vie pratique.
