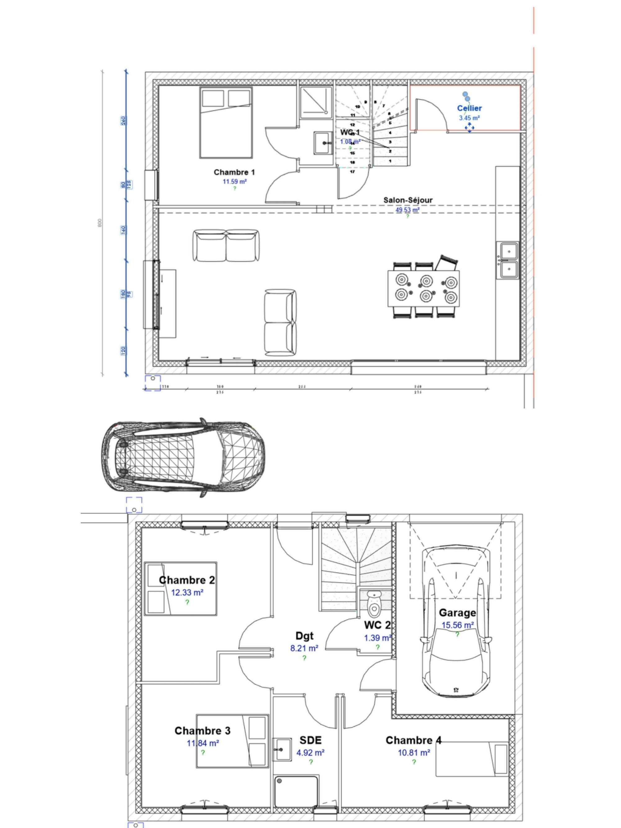
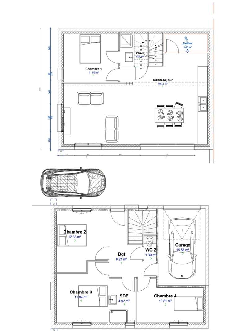
Construction : Projet maison 5 pièces 115 m² sur terrain de 348 m². Sourcieux-Les-Mines (69210)
Surface :
Hab : 115m²
Terrain : 348m²
Prix :
415 000€
Un cadre de vie pratique et agréable vous attend à quelques pas des arrêts de bus scolaires.
Profitez du confort moderne qu'offre cette villa individuelle neuve.
Dotée d'un chauffage au sol intégral par pompe à chaleur, elle propose des finitions soignées et de qualité : carrelage 60x60 ou imitation parquet, bandeaux et frisettes de toiture en PVC, menuiseries PVC pour les fenêtres et aluminium pour les baies coulissantes, gouttières en aluminium et parement en pierre ornant une partie de la façade.
Sur un terrain de 348 m² exposé sud-est, cette maison comprend quatre chambres, dont une suite parentale avec salle d'eau privative, ainsi qu'une salle de bains. Un garage et une place de parking sont également inclus.
Le point central de cette demeure est un espace de vie généreux de plus de 44 m², bénéficiant d'une luminosité exceptionnelle grâce à son orientation sud-est. De grandes baies vitrées en aluminium de 3,60 m, équipées de seuils encastrés et de volets roulants connectés, ouvrent cet espace sur l'extérieur.
La superficie totale de la villa est de 115 m² et offre une vue dégagée.
Pour plus d'informations sur les risques potentiels concernant ce bien, veuillez consulter le site Géorisques.

