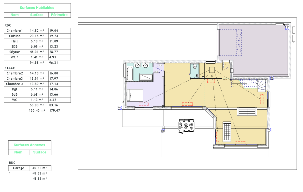
Construction : Projet maison de 150 m² 5 pièces sur terrain de 2080 m². Charnay (69380)
Surface :
Hab : 150 m²
Terrain : 2 080 m²
Prix :
758 200€
Découvrez cette somptueuse villa de 150 m², nichée sur un terrain de 2 080 m² offrant une vue panoramique à couper le souffle.
Profitez d'un espace de vie exceptionnel avec un salon-séjour lumineux de 76 m² et une cuisine ouverte, parfait pour recevoir vos proches.
La villa dispose de 4 chambres spacieuses, dont une suite parentale au rez-de-chaussée.
Un grand garage double complète ce bien d'exception.
Prestations haut de gamme : matériaux de qualité et chauffage au sol par pompe à chaleur air-eau.
Vendue hors cuisine, parquet dans les chambres et peintures, cette villa est une opportunité rare de créer la maison de vos rêves dans un cadre idyllique. Contactez-nous pour une visite !

