Construction : Projet maison de 119m² 5 pièces sur terrain de 380m². Sainte-Consorce (69280)
Surface :
Hab : 119 m²
Terrain : 380 m²
Prix :
475 000€
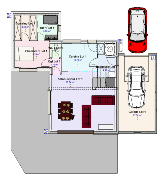
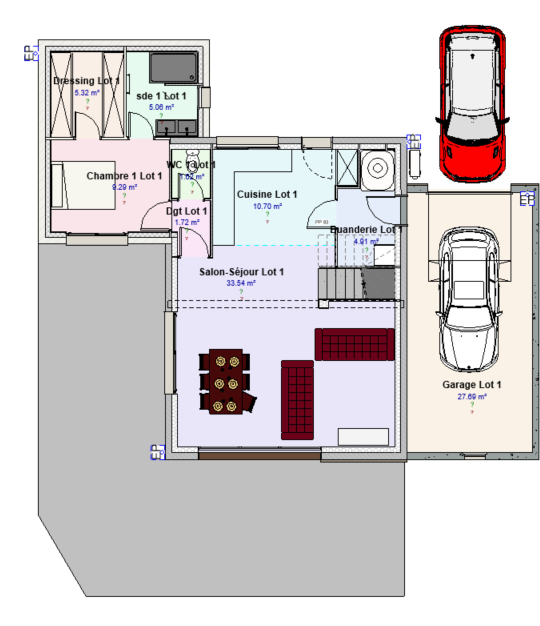
Imaginez vous détendre dans votre future maison, baignée de lumière grâce à sa pièce de vie traversante avec cuisine ouverte sur le salon.
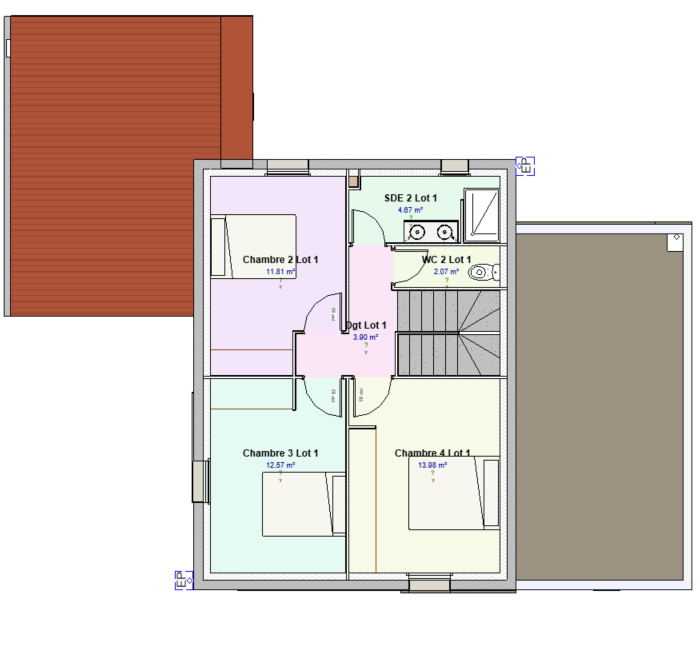
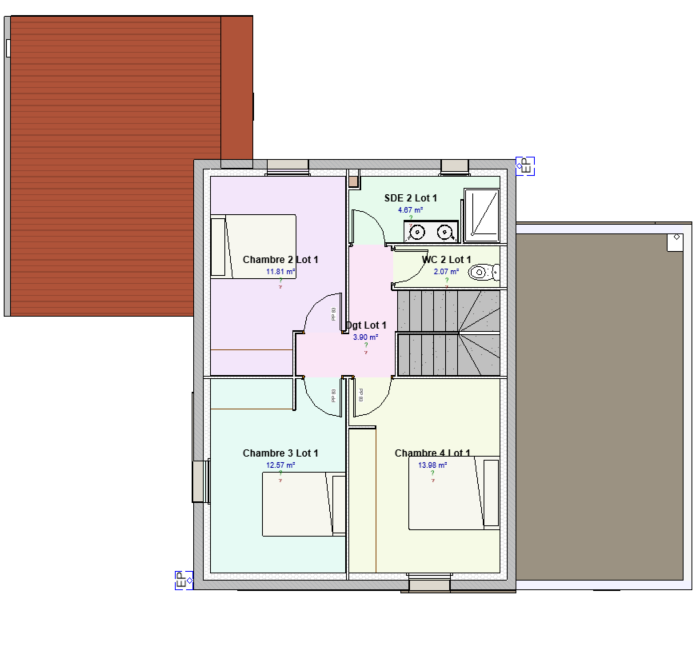
Sur un terrain de 380 m², cette maison de 119 m² offre un cadre de vie idéal pour une famille, à quelques minutes de Tassin-la-Demi-Lune et de Lyon. L'étage, dédié au repos, comprend quatre chambres confortables, une salle de bain familiale et des toilettes séparées.
Un garage attenant et une place de parking facilitent votre quotidien. Conforme aux dernières normes et livrée avec parquets et peintures à terminer, cette maison attend vos idées pour se transformer en votre cocon familial. (Cuisine à prévoir).

