Construction : Projet maison 5 pièces 115m² sur terrain de 751 m². Saint-Laurent-de-Chamousset (69930)
Surface :
Hab : 115 m²
Terrain : 751 m²
Prix :
339 000€
Hors frais de notaire, terrain, cuisine, peintures et parquet dans les chambres.
Découvrez cette magnifique maison neuve de 115 m² implantée sur un terrain viabilisé de 751 m².
À moins de 5 minutes de toutes les commodités, cette propriété exceptionnelle vous accueille dans un petit lotissement communal de 5 lots seulement.
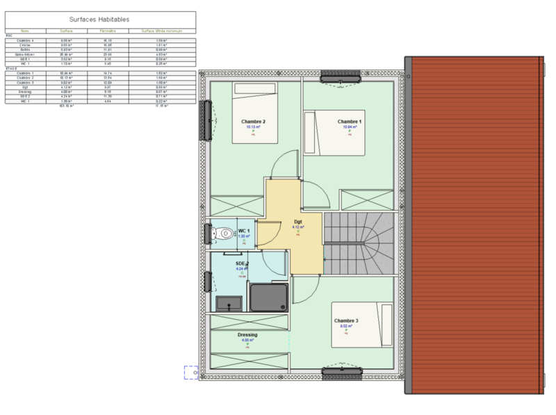
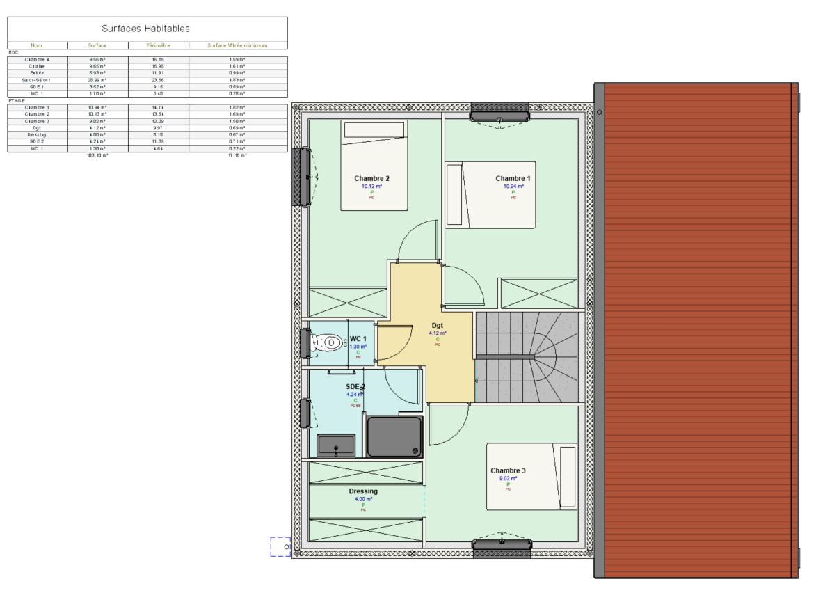
Cette splendide maison neuve aux belles prestations vous séduira par son grand espace de vie de 46 m² avec cuisine ouverte, baigné de lumière grâce à sa grande baie vitrée de 3,60 m. Le parement en pierres apporte un cachet authentique à cette demeure moderne qui propose 4 chambres spacieuses, une salle d'eau, un cellier, un garage intégré et un chauffage au sol.
Le terrain de 751 m², exposé Sud-Ouest, vous offre une vue imprenable sur un environnement verdoyant. Sa légère pente est parfaitement valorisée par l'architecture qui profite pleinement de son exposition privilégiée.
Contactez-nous sans tarder pour plus d'informations ou organiser une visite !
Terrain sélectionné auprès de notre partenaire foncier, sous réserve de disponibilité. Prix hors frais d'acte notarié.
Contrat de construction CCMI, assurances et garanties du constructeur (RC professionnelle, décennale, dommage ouvrage, garantie de remboursement de l'acompte, livraison à prix et délai convenus).

