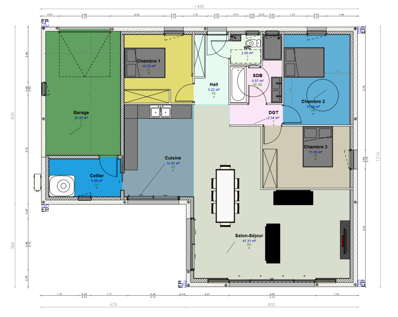
Construction : Projet maison de 111m² 4 pièces sur terrain de 767m². Fleurieu-sur-Saône (69250)
Surface :
Hab : 111 m²
Terrain : 767 m²
Prix :
556 600€
Rare à Fleurieu-sur-Saône !
À 500 m du centre du village, des écoles et des commerces, au grand calme, découvrez ce projet de maison neuve de plain-pied de 111 m² sur 767 m² de terrain.
Grande pièce de vie de 55 m², 3 chambres avec placards, garage attenant de 20 m² avec accès direct.
À seulement 20 min du centre de Lyon, bus ligne 40 (Bellecour) et 70 (Part-Dieu) à 700 m.
Prix hors frais de notaires peintures parquets.

