Construction : Projet maison 6 pièces 153m² sur terrain de 866m² Collonges-au-Mont-d'Or (69660)
Surface :
154m²
Prix :
939 000€
Maison neuve à Collonges-au-Mont-d'Or
Maisons Amboise vous propose cette maison contemporaine située dans la commune de Collonges-au-Mont-d'Or, à proximité de Lyon, dans un secteur calme et résidentiel.
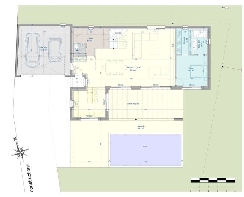
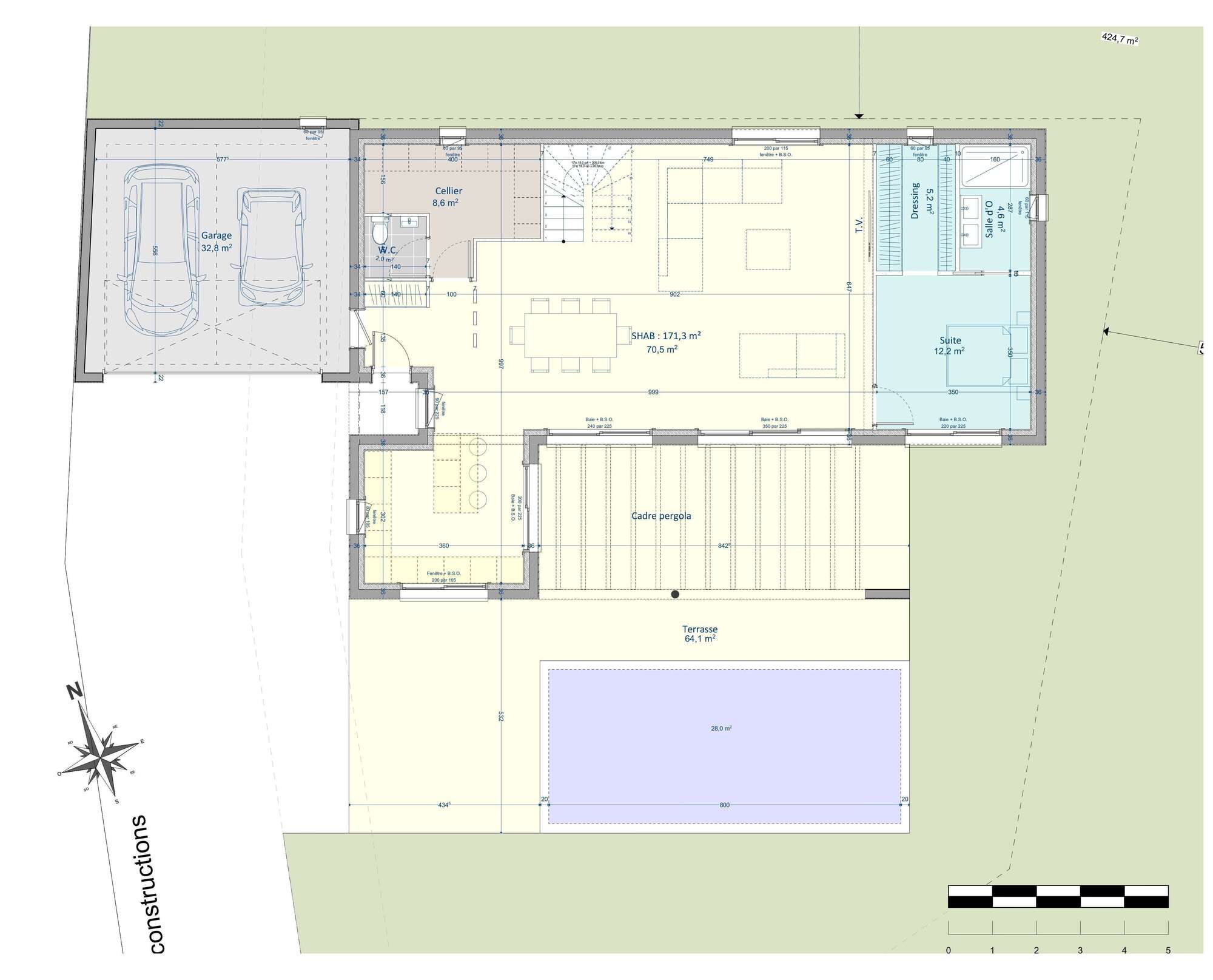
Cette maison neuve de 154 m², avec un garage de 34 m², sur un terrain de 866 m², se compose au rez-de-chaussée d’un grand séjour de plus de 55 m² avec triple exposition, une buanderie, une suite parentale et des WC séparés.
À l’étage, vous trouverez 4 grandes chambres de 12 m², une salle de bain et des WC séparés.
La maison est équipée d'un chauffage au sol alimenté par une pompe à chaleur, de carrelage 80x80, de menuiseries en aluminium KLINE avec détecteurs d’ouverture intégrés, de volets roulants et brise-soleil orientables sur les grandes baies, ainsi que d’un système de gestion domotique. Faible consommation énergétique.
Le projet est prévu en aggloméré, avec une variante en briques possible.
Maison conforme à la réglementation RE 2020.
Détails des tarifs
Le prix comprend le terrain (hors frais de notaire), le coût de la construction (hors cuisine, parquets, peintures, aménagements extérieurs (pergolas, piscine…)), la viabilisation, les VRD, les études de sol et hydraulique, le terrassement ainsi que l'assurance dommages ouvrage.
