Construction : Projet maison de 103 m² 5 pièces sur terrain de 530 m². Le Bois D'Oingt (69620)
Surface :
Hab : 103 m²
Terrain : 530 m²
Prix :
364 200 €
À VENDRE – Terrain + Villa Neuve de 103 m² – Calme & Exposition Sud
Amboise vous propose en partenariat avec METROPOLE IMMOBILIER un beau terrain viabilisé quasi plat, situé dans un environnement calme et bénéficiant d’une exposition plein sud, idéale pour une maison lumineuse toute l’année.
Ce terrain est proposé avec un projet de construction d'une villa neuve de 103 m² habitables, aux prestations modernes et de qualité.
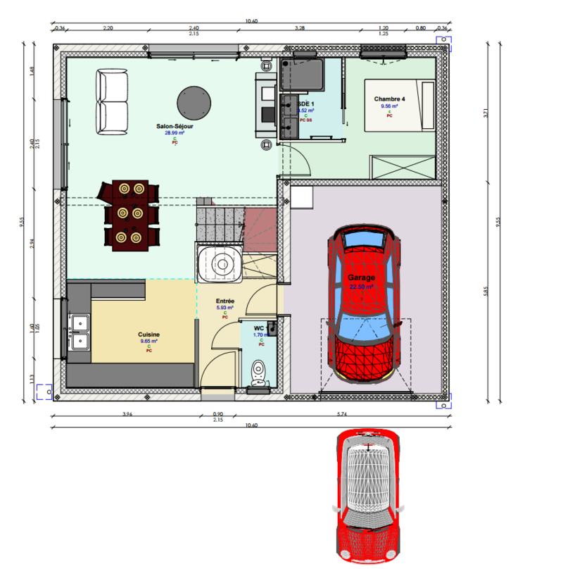
Composition de la villa
- Grande pièce de vie de 40 m² avec cuisine ouverte
- Suite parentale au rez-de-chaussée avec salle d’eau
- Trois chambres à l’étage
- Garage attenant
- Plancher chauffant pour un confort thermique optimal
- Domotique intégrée pour un pilotage intelligent de votre habitat
- Prestations de qualité : matériaux modernes, finitions soignées
Terrain
- Terrain quasi plat
- Exposition plein sud
- Cadre calme
Localisation
Proche des écoles, commerces et axes de circulation, tout en offrant un cadre de vie paisible.
Contactez-nous dès maintenant pour obtenir plus d’informations ou organiser une visite. Tarif hors viabilités, hors cuisine, parquets dans les chambres et peintures.
